ACOUSTIKIT ENGINEERED ACOUSTIC SOLUTIONS

Home

About

Credits

Links

Resellers

Ordering

Contact

Email


 
ACOUSTIKIT 150
ACOUSTIKIT 250
Absorption Panel
Resonator Panel
Combined Panel
Wedge Panel
Corner Base Trap
Ceiling Cloud
Acoustic Molding
Acoustic Doors
Acoustic Windows
Acoustic Flooring
Custom Products
Special Services
Swatch Options
Photo Gallery

ACOUSTIKIT 150

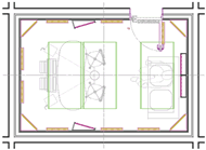
Optimally Designed for a 150 Square Foot Room
Shown in a 15-ft by 10-ft Sample Room Configuration in 3-D View. Click Diagram for 2-D View

Quantity

Acoustic Product

4

28 inch Corner Base Traps

8

Absorption Panels

2

Combined Panels

2

Wedge Panels

3

Ceiling Clouds

Option A

Light Wood

Option B

Dark Wood

get pdf

ACOUSTIKIT150.pdf

As can be seen in the above diagram, the ACOUSTIKIT 150 offers all the features required to insure acoustic integrity, and we will configured it to accommodate your unique studio design.


   ACOUSTIKIT ENGINEERED ACOUSTIC SOLUTIONS     Copyright © 2007 ACOUSTIKIT    504 Alhambra Circle  Coral Gables, Florida  33134  USA    Tel: 786.873.9899      info@acoustikit.com